<--- Retour sur liste
 

Maison à vendre de 152 m2 avec un terrain de 200 m2 LA SOUTERRAINE, Creuse, Limousin

€127.000



Valeurs énergétiques

DPE : F  KWhEP/m2/jr

DPE

GES : F  KgeqCO2/m2/jr

GES

Description
Grande Maison Avec Appartement. Située dans le principal quartier commerçant de Fursac, mais en retrait de la route principale, avec un parking facilement disponible, vous trouverez cette grande maison avec un appartement séparé.

Cette propriété commerciale convertie se compose d'une cuisine ouverte sur un salon et d'une buanderie séparée. Cinq chambres, une salle de bains et des toilettes séparée.L'une des dépendances a été convertie pour créer un magnifique appartement de deux chambres en duplex, avec une cuisine moderne, un salon, une salle de jeux séparée et une salle de bains moderne.

A l'extérieur, il y a cinq autres dépendances, une cour gravillonnée, et un beau jardin d'environ 200 m2, aménagé en pelouse.La maison a un niveau d'efficacité énergétique de F et l'appartement a un niveau d'efficacité énergétique de D.

La propriété est située à 12 km de La Souterraine, à 14 minutes en voiture, et à 16 km de Bessines sur Gartempe, à 16 minutes en voiture. L'aéroport de Limoges se trouve à environ 45 minutes de route.La propriété se trouve à distance de marche de toutes les commodités nécessaires et offre un accès facile à la belle campagne de la Creuse, idéale pour la marche, le vélo ou la détente. (5.83 % honoraires TTC à la charge de l'acquéreur.)

Mandy SALT (EI) Agent Commercial - Numéro RSAC : 2023AC00106 - Limoges.
Données
Référence:
74866

Référence d'agence:
MS-5009

Categorie:
A vendre

Type de bien:
Maison

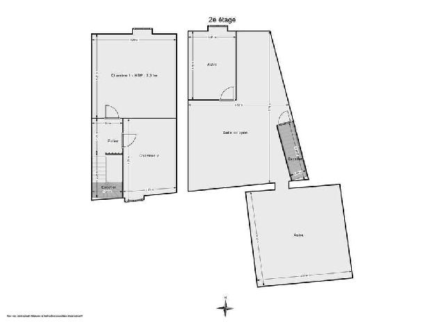
Surface:
152 m2

Terrain:
200 m2

Pièces:
7

Chambres:
5

Adresse:

Ville:
23300 LA SOUTERRAINE

Département:
Creuse

Région:
Limousin

Pays:
France

Vendeur
Agence Newton
Téléphone: +33 (0) 222.444.080
Languages parlés: Français Anglais
Formularie de Contact